START
IMMOBILIEN
KISSINGER STRAßE DETMOLD
TAG DES OFFENEN DENKMALS
VILLA KUGEL GÜTERSLOH
ENTWICKLUNG
TURMHAUS
MARIENFELDER STRASSE GUETERSLOH
MOLTKESTRASSE
SIEGFRIED-HOFIUS-STRASSE
DALTROPSTRASSE
DETMOLD HANGLAGE
VERWALTUNG
INNENARCHITEKTUR
REFERENZEN
CEYONIC
KASINOPARK
KATAG
LUISENSTRASSE
NORMBAU MUSTERHAUS
ÖFF. GEFÖRD. WB
OFFIZIERSHEIM
PLUS MARKT
SCHNATSWEG
NIEDERLANDPARK
STADTPARK GÜTERSLOH
HARZWEG
FREIHERR-VOM-STEIN-ALLEE
SCHLOSS-HOLTE
PRINZENSTRASSE
SCHALÜCKSTRASSE
HALLERSTRASSE
FRIEDENSSTRASSE
AM RICKFELD
FRIEDA-NADIG-STRASSE
HOHENZOLLERNSTRASSE32
DACHGESCHOSS UND GLASFAHRSTUHL
TIEFGARAGENSANIERUNG
BISMARCKSTRASSE_HALLE
FREIHERR-VOM-STEIN-ALLEE NB
QUARTIERSERWEITERUNG "UNTER DEN LINDEN"
STEINHAGEN | SCHLICHTE CARREE | KIRCHPLATZ
PREKERSTRASSE 17
STEINHAGEN ZENTRUM
BISMARCKSTRASSE 7 und 9
BISMARCKSTRASSE 11
HILTERWEG STEINHAGEN
UNTER DEN ULMEN 6
  • LANGE NACH DER KUNST 2024

PROFIL
KONTAKT

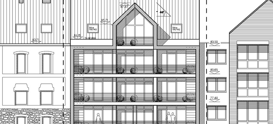
EIGENTUMSWOHNUNGEN FRIEDENSSTRASSE

 

5 moderne Eigentumswohnungen in guter Lage von Gütersloh, 43-91 qm

 

 

>> Kontakt

<

>

DOWNLOAD

 

>> Bauantrag Lageplan

>> Bauantrag Gartenansicht

>> Bauantrag Straßenansicht

>> Bauantrag Schnitt A-A

>> Bauantrag Schnitt B-B

>> Bauantrag KG

>> Bauantrag EG

>> Bauantrag 1OG

>> Bauantrag 2OG

>> Bauantrag DG

 

 

 

Sie benötigen den Adobe® PDF-Reader®
um die Dokumente ansehen zu können.

www.adobe.de

 

WEITERE REFERENZEN:

 

>> Ceyonic

>> Kasinopark

>> KATAG

>> Luisenstraße

>> Musterhaus

>> Öffentl. gef. Wohnungsbau

>> Offiziersheim

>> Plus Markt

>> Schnatsweg

>> Niederlandweg Blomberg

>> Stadtpark

>> Harzweg

>> Freiherr-vom-Stein-Allee

>> Schloß-Holte

>> Prinzenstraße

>> Haller Straße

>> Am Rickfeld

>> Frieda-Nadig-Straße

>> Hohenzollernstraße 32

>> Dachgeschoss und Glasfahrstuhl

>> Tiefgaragensanierung

>> Bismarckstraße

>> Freiherr-vom-Stein-Allee

>> Bismarckstraße 7 und 9

 

Start | Impressum | Datenschutzerklärung | Kontakt | © Horst Neugebauer